一点经验网
首页
美食营养
生活百科
知识问答
生活知识
返回
一点经验网
首页
美食营养
游戏数码
手工爱好
生活知识
生活百科
健康养生
运动户外
职场理财
情感交际
母婴教育
时尚美容
知识问答
更多知识
搜索
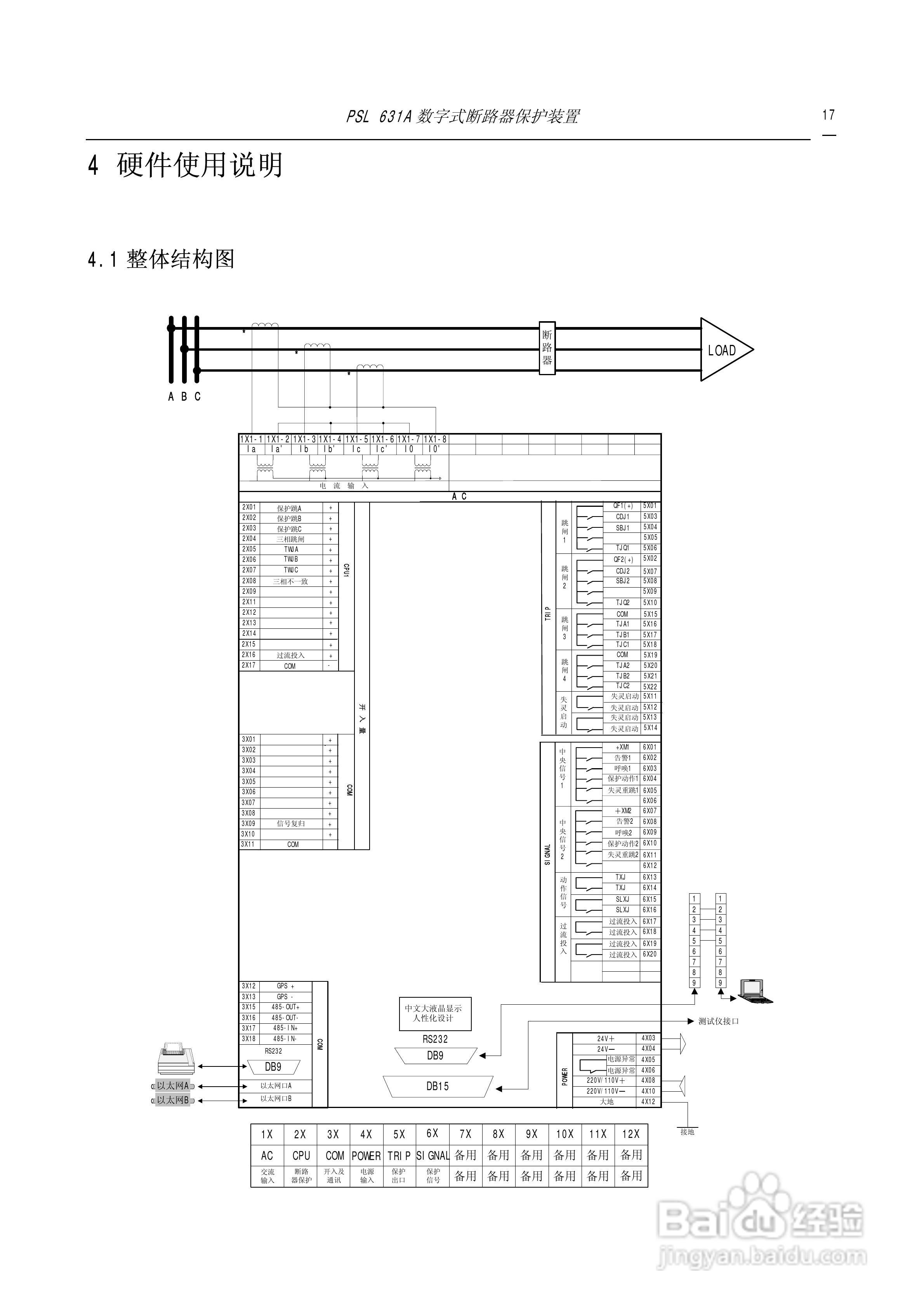
PSL631A断路器保护装置说明书:[2]
2026-04-02 05:00:09
本篇为《PSL631A断路器保护装置说明书》,主要介绍该产品的使用方法以及常见故障解决方案。
(共篇)
上一篇:
|
下一篇:
相关推荐
怎样使用Excel审阅选项的重置所有批注功能呢?
阅读量:91
如何快速输入每月的最后一天
阅读量:25
销售出库有单价关联生成销售发票没有带出单价?
阅读量:133
资产负债表填列方法
阅读量:171
excele:[8]Excele中字符替换
阅读量:167
猜你喜欢
诺优能奶粉怎么样
麻辣香锅怎么做
吃了精子会怎么样
怎么哄女孩子开心
bowl怎么读
为什么晚上睡不着觉
微信置顶文字怎么设置
椒盐皮皮虾的做法
a2奶粉怎么样
怎么戒烟
猜你喜欢
雷神笔记本怎么样
为什么会得荨麻疹
酸辣汤的做法视频
我为什么这么帅
我为什么要入党
莱昂纳多为什么叫小李子
说说你和你老公晚上怎么做的
女人为什么会来月经
关节疼痛是怎么回事
内裤上有黄黄的分泌物是怎么回事