excel表格怎么将内容打印成一页
1、首先打开我们所要打印excel表格,点击文件按钮

2、点击文件按钮之后,我们可以看到很多功能,这里我们点击打印功能

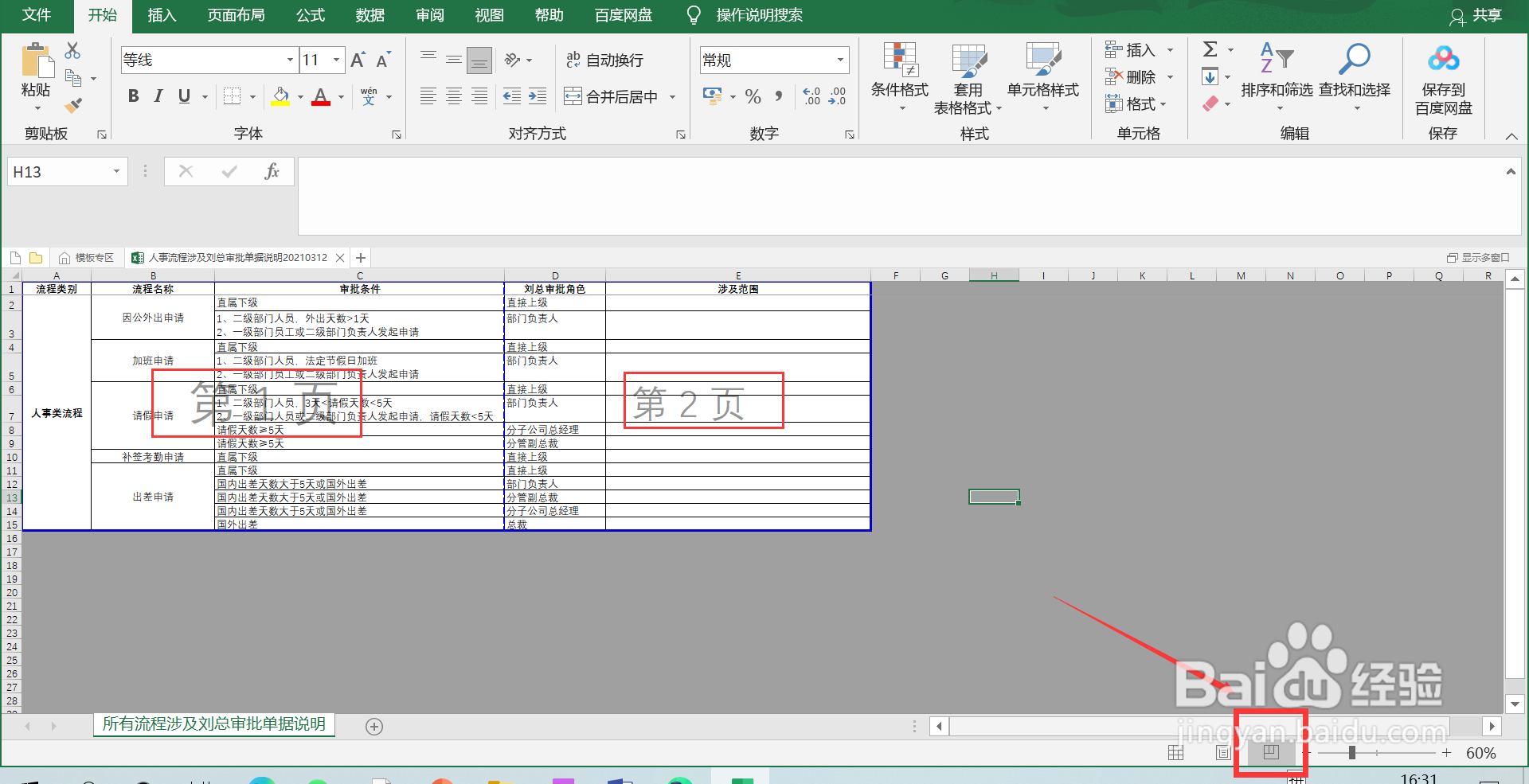
3、我们点击打印功能,这里可以看到,字段被分成两页,这样打印出来外面也很难对数据进行查看与分析


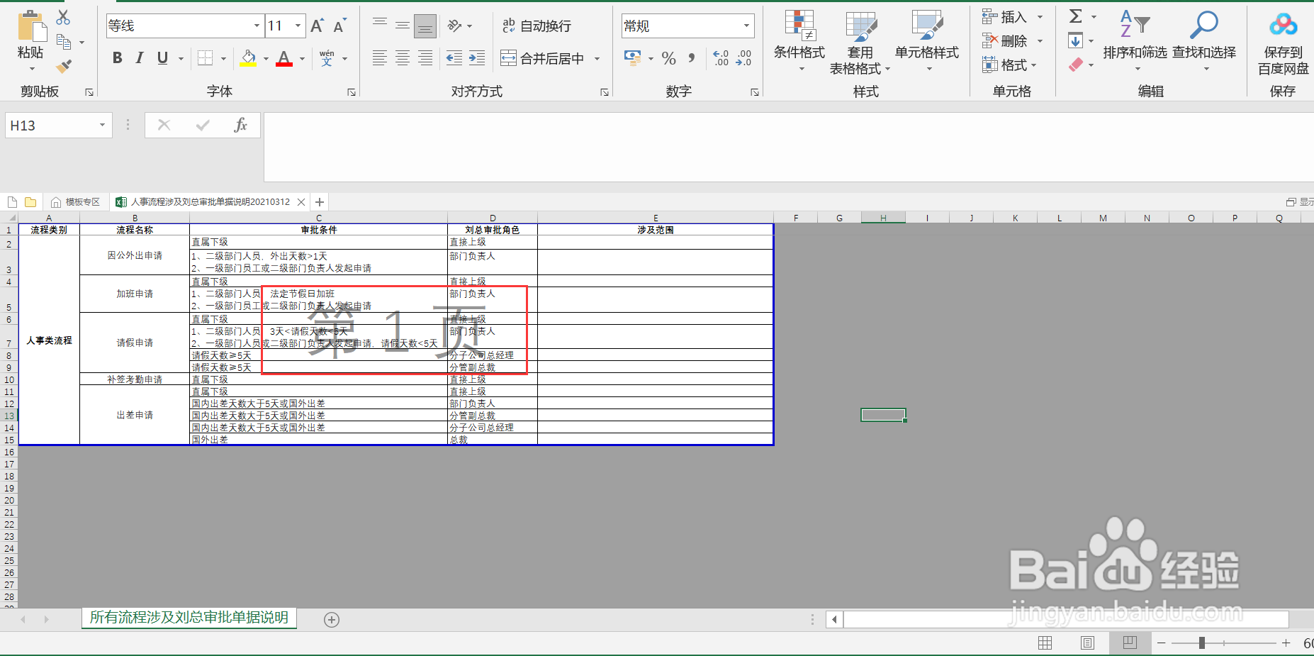
4、这时候我们仍打开所需龅歧仲半打印excel表,点击下面按钮,我们可以看到表格被分开两页,与我们之前打印预览显示一致,这里我们向右拖拉蓝色虚线;这里我们看到打印变成一页了

5、这时候我们再点击打印,查看预览内容,这时候我们查看打印内容变成一页,且全部显示列均在一页显示
